煤化工用硬密封固定球阀结构设计的改进
声明:本文转载于《化肥设计》 ,用于技术交流,如有侵权,可联系本公司删除
作者:戴文柏 , 高斌文 , 王邦捷
出版源:《化肥设计》 , 2016 , 54 (5) :42-45
摘 要:介绍了煤化工用硬密封固定球阀部分结构的优化改进设计,涉及阀座与阀体静密封结构、阀杆与球体连接结构、球体枢轴固定结构及上、下轴承结构,通过上述改进,提高了阀门的性能和使用寿命。
煤炭作为中国的主要化石能源之一,其所衍生的产业结构门类齐全、种类繁多。一直以来,煤化工行业对中国国民经济的持续发展、战略需要作出了巨大贡献。
煤化工行业经过多年发展,产能产值已达到一定规模,传统煤化工不再扩大规模,新型煤化工的产业格局已基本成型。目前,由于国际原油价格持续走低、国内节能减排环保意识增加、经济增速放缓,我国煤化工行业正处于供大于求、产能过剩的低迷期。在这种大背景下,对煤化工装置可靠运行提出了更高的要求,需要在原有规模的基础上有更多的技术升级和新技术、新产品的发明创新来提升煤炭的高质高效利用,提高整体煤化工产业的经济效益和产品竞争力,避免没有技术含量的重复建设。
针对煤化工装置中不可或缺的设备———球阀,也应对其有更高的技术要求和自主开发能力。可以通过借鉴国外先进技术,对其深化、优化,进行技术创新,开发新产品,降低阀门设计制造成本,严格控制阀门质量,提高产品附加值,逐步替代进口,实现阀门国产化。
本文对煤化工用硬密封固定球阀的部分结构进行了优化改进。
1 结构分析及改进
1.1 阀座密封结构
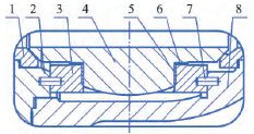
球阀硬密封副结构形式见图1。双阀座结构,具有双阻断DBB功能,自泄压及自清洁设计,阀座与球体配对研磨,带状密封以实现零泄漏,可选多种表面涂层,弹簧设计动态补偿、压差平衡、根除防抱死失效功能。阀座设有防渣结构,能有效防止煤粉(渣)从阀腔和流道进入阀座密封腔。

图1 阀座密封结构
1—阀体;2—凹压环;3—防尘石墨圈;4—凸压环;5—碟形弹簧;6—压环;7—石墨环;8—阀座;9—球体
相对于普通球阀组合式阀座结构,本阀座结构设计结合煤化工特殊工况,对其进行针对性优化设计。采用整体式阀座,将石墨环、压环、碟形弹簧、凸压环、防尘石墨圈、凹压环藏于阀座内部,其优点在于:保证了阀座原有功能的同时,减少了介质通过静密封面时的泄漏,避免颗粒介质对其他零件的冲蚀,简化了弹簧腔的防尘结构,同时整体密封结构也更加稳定。
阀座通道采用流线型设计,使流体阻力更小,消除结构死角,减少介质淤积结垢,特别适合混杂着硬质颗粒的两相流体介质。
阀座预紧力使用碟形弹簧提供,无论温度和压力如何变化,它始终给阀座一个推力,既能保证阀门在低压工况下的密封性能,又能修补密封面的磨损,保证阀座的泄漏等级达到要求,弹簧腔碟簧数量可根据阀门工况灵活设计:①可单独使用;②可采用对合形式叠加,弹簧预紧力不变,但能提供更大的弹簧变形量,去弥补加工误差和长时间高温高压使用后造成的密封面磨损,保证球体和密封面始终高度吻合;③采用叠合形式叠加,弹簧变形量不变,能提供更大的弹簧预紧力,弥补弹簧长时间使用后预紧力不足的缺点,弹簧腔组合结构见图2。

图2 弹簧腔组合结构
在阀座上设置有材料为柔性石墨的成型石墨环。石墨环结构属于静密封,与阀体接触面积大,在高压环境中摩擦、磨损问题比较突出。通过对石墨环进行分析,对其受阀座和碟簧压紧的情况进行力学分析,运用弹性力学方面的有关理论,建立石墨环受力分布和变形分布的计算模型,得出接触面圆锥形的轴向压力和径向压力分布比较合理、其均匀性随着圆锥角度的增加而增加的结论。
所以在石墨环上设计有两个不同角度的圆锥面角度Ⅰ和角度Ⅱ,这样设计可满足石墨环轴向和径向压力分布的递增,越靠近密封点处比压越大,而与之配合的阀座处角度存在1°~2°的差值,也增强了石墨环径向密封自动补偿功能,阀座石墨环结构见图3。

图3 阀座石墨环结构
1—碟形弹簧;2—阀体;3—压环;4—石墨环;5—阀座
圆锥形结构也使石墨环所需的最大压紧力变小,减轻了石墨环的磨损,延长了工作寿命,同时因为圆锥形结构特点,更容易安装和更换。
为了防止固体颗粒进入阀座背密封区域影响阀门的密封性能,除了阀座采用刮刀结构设计,在开启或者关闭过程中对球体密封面进行刮擦作用外,还采用了防颗粒阀座设计,阀座后面采用凹、凸压环结构双层防尘石墨圈密封,在弹簧预紧力下防止颗粒介质进入弹簧腔后结垢堵塞,造成弹簧失效。防尘石墨圈与凹压环接合处设计成带一定角度的锥面,可实现自密封功能,在增加了密封接触面积的同时,也受碟簧推力形成斜向挤压力,压力越大,自密封作用越好,阀座防尘结构见图4。

图4 阀座防尘结构
1—凹压环;2—防尘石墨圈;3—凸压环
1.2 阀杆与球体连接结构设计
阀杆与球体连接有多种结构,为适应煤化工高温高压、多相流等苛刻工况场合,在煤化工用硬密封球阀中,我们选用销连接同心结构,以下为各种连接方式介绍。
1.2.1 方槽或矩形槽连接
采用这种连接结构,阀杆与球体在接触面上的比压分布是不均匀的,球体连接槽比压分布见图5。球阀经过一段时间启闭运行后,球体与阀杆的连接接触部位会有不同程度的磨损,原有的紧密配合变成间隙配合,这样会使阀杆与球体接触面挤压应力极不均匀,局部挤压面挤压由弹性变形恶化到塑性变形。在球体连接面附近的涂层会龟裂和脱落,严重时涂层龟裂会扩展至密封面导致阀门密封失效,球体挤压变形见图6。
、、

图5 球体连接槽比压分布
注:Lzy—挤压长度;Bzy—挤压应力

图6 球体挤压变形
1.2.2 键连接
键在轴槽中易松动,轴上键槽端部应力集中较大,并且键槽需在铣床上加工,加工工艺相较其他连接结构复杂。
1.2.3 销连接
阀杆与球体销连接同心结构,避免因间隙配合导致球体与阀杆的圆心中心不在一条直线上,加工工艺性也简单。这种结构接触面比压分布均匀,阀杆联接部分的近似挤压应力和近似剪切应力较传统矩形联接小,球体与阀杆梢连接结构见图7。此连接方式具有传统锁渣阀中连杆球(球体与阀杆一体连接)的优势,操作力矩稳定,传递扭矩足够大,同时又避免连杆球的固有缺陷,当球体和阀杆一体化设计时阀杆在介质力的作用下会有一个向上位移的趋势,进而会造成球体与阀座接触圆周上的分布比压不均匀,在阀门开关过程中磨损也会不均匀,最终会导致阀门的泄漏。

图7 球体与阀杆销连接结构
1—阀座;2—球体;3—主阀体;4—阀杆; 5—传动销;6—副阀体
1.3 球体采用轴类固定结构
上、下枢轴支撑固定球体,确保球体精确定位。使球体在介质压力作用下无阀体轴线方向的移动,结构简单,可靠性强。下部枢轴作为阀门底部的承压件,也是阀体下部密封垫片、弹簧调整机构的固定和安装部件。
同时下枢轴上安装有内置式弹簧调整机构,在垫块下设有弹簧,该弹簧不仅可以承载球体的自身质量,而且可通过改变弹簧的压缩量来调节球体中心与阀座流道中心线的径向距离,从而使阀座与球体密封副中心建立良好的吻合关系,提高阀门密封性能,也能导出球体因各种原因产生的静电,该结构已获得国家知识产权局授权的实用新型专利证书,专利号ZL201220254769.2,并在神华宁煤煤炭间接液化项目中进行应用,效果良好。
此外,在煤化工生产中,介质大多含有大量固体颗粒,这些细小颗粒进入轴承和枢轴中会磨损轴承、枢轴表面,形成擦伤、划痕,降低轴承寿命,甚至在堆积堵塞下导致阀门卡死。因此在下枢轴处设计一台肩,安装石墨防尘圈,阻止介质颗粒对枢轴和轴承的损伤,球体下枢轴结构见图8。

图8 球体下枢轴结构
1—阀座;2—球体;3—主阀体;4—防尘圈;5—枢轴;6—垫块;7—轴承;8—副阀体
也有很多种固定球阀球体采用了支撑板结构来优化阀杆的受力情况,例如管线球阀、氧气专用球阀等,但对于煤化工工况介质来讲,支撑板结构复杂,介质流通性不好,容易导致大量固体颗粒黏结在阀腔内部形成结垢,堵死阀腔,并不适用,球体支撑板结构见图9。

图9 球体支撑板结构
1—阀座;2—副阀体;3—支撑板;4—球体;5—轴承;6—减磨垫;7—销;8—主阀体
1.4 轴承结构
与球体、阀杆和阀体配合的轴承进行内表面硬化,硬化方式为喷涂硬质合金或氮化处理,使其耐磨性能大大提高。在高温状态下依然具有高硬度与耐磨性,能确保阀门在长期启闭时不会出现“咬死”的情况。同时能有效降低阀门操作扭矩,增强填料密封性能,还能为阀杆导向,消除阀杆径向移动对填料的磨损。为防止颗粒进入,保护阀杆和填料函,在轴承下端部和外侧设计安装防尘圈Ⅰ、Ⅱ,保护阀杆和填料函,轴承结构见图10。

图10 轴承结构
1—阀杆;2—阀体;3—轴承;4—填料箱;5—垫片;6—填料;7—防尘圈Ⅰ;8—防尘圈Ⅱ
2 结语
随着技术的发展,金属硬密封耐磨球阀的应用领域将更加广泛,通过以上对硬密封球阀四个结构的剖析,并针对煤化工行业的实际工况特点,对这几处结构进行优化设计,有利于提高阀门的性能和使用寿命。希望本文的论点能够对阀门行业的建设提供一定的参考,对提升我国阀门设计水平起到积极作用。
扫描二维码分享到微信