调节阀工作原理动画
调节阀
国际电工委员会 IEC 对调节阀(国外称控制阀 Control Valve)的定义为:“工业过程控制系统中由动力操作的装置形成的终端元件,它包括一个阀体部件,内部有一个改变过程流体流率的组件,阀体部件又与一个或多个执行机构相连。执行机构用来响应控制元件送来的信号。”可见,调节阀是由执行机构和阀体部件两部分组成,即:
调节阀=执行机构+阀体部件+附件
其中,执行机构是调节阀的推动装置,它按信号压力的大小产生相应的推力,使推杆产生相应的位移,从而带动调节阀的阀芯动作;阀体部件是调节阀的调节部份,它直接与介质接触,通过执行机构推杆的位移,改变调节阀的节流面积,达到调节的目的。
调节阀按其能源方式不同主要分为气动调节阀、电动调节阀、液动调节阀三大类。它们的差别在于所配的执行机构上。前者配的是气动执行机构,中间一种配的是电动执行机构,后者配的是液动执行机构。
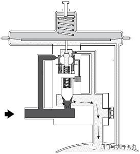
气动调节阀剖面结构图

调节阀在系统中的作用与重要性
调节阀在调节系统中是必不可少的,它是组成工业自动化系统的重要环节,被称之为生产过程自动化的“手脚” 。
如图 下图所示:
调节阀的功能
1 、调节功能
1) 流量特性
流量特性是反映调节阀的开度与流量的变化关系,以适应不同的系统特性要求,如对流量调节系统反应速度快需对数特性;对温度调节系统反应速度慢,需直线流量特性。流量特性反映了调节阀的调节品质。
2) 可调范围R
可调范围反映调节阀可控制的流量范围,用R=Qmax:Qmin之比表示。R越大,调节流量的范围越宽,性能指标就越好。通常阀的R=30,好的阀,如V型球阀、全功能超轻型调节阀,R可达100~200。
3) 小开度工作性能
有些阀受到结构的限制,小开度工作性能差,产生启跳、振荡,R变得很小 (即Qmin很大),如双座阀、衬胶蝶阀。好的阀小开度应有微调功能,即可满足很小流量的调节,且工作又要求十分平衡,这类阀如V型球阀、偏心旋转阀、全功能超轻型调节阀。
4) 流量系数Cv或Kv
流量系数表示通过流量的能力,同口径Kv值越大越好,尤其是球阀、蝶阀,它们的Cv/Kv值是单座阀、双座阀、套筒阀的2~3倍。
5) 调节速度
满足系统对阀动作的速度要求。
2 、切断功能
切断功能由阀的泄漏量指标来表示,切断通常指泄漏量小于0.001%,它反映阀的内在的质量。在阀的使用中,对国产阀泄漏量大的呼声反映很大。
3 、克服压差功能
它通常用阀关闭时的允许压差来表示,允许压差越大,此功能也就越好。如果考虑不周到,阀芯就会被压差顶开,造成阀关不到位,泄漏量超标。因此,保证阀切断就必须克服阀关闭时的工作压差。
4、 防堵功能
对不干净介质的调节或者即使是干净介质,管道中的焊渣等杂物都可能造成阀堵塞或被卡住,因此要求阀应有较好的防堵功能,使之正常调节。防堵性最好的是流路最简单的单座角阀和旋转类阀,如球阀、蝶阀、偏心阀;流路复杂的阀、上下衬套导向的阀,迷宫式多级降压阀易造成堵卡。
5、 耐蚀功能
抵抗介质的腐蚀和冲蚀和气蚀,以提高阀的使用寿命。阀的腐蚀是由介质的化学性能引起的材质腐蚀问题,通常选用耐腐蚀的材料来解决;冲蚀是由高速流动的介质、含颗粒的 介质所致。解决的途径是选用耐磨的材料,如堆焊斯泰莱合金或碳化钨。气蚀则要在机构结构上采用反汽蚀措施,对高压阀、大压差工作的调节阀 要采用多级降压的形式。
6 、耐压功能
它反映阀的强度和安全指标,即介质不能通过密封处和阀体缺陷处向外渗漏。出厂时通常用1.5倍公称压力作试验来检验。对高压介质最好是采用锻件结构;铸铁阀的耐压强度是最低的,通常应选铸钢阀。
7 、耐温功能
满足不同温度条件下阀的强度和性能,温度的较大变化会使阀体材质的强度降低,因此阀必须满足介质的温度变化范围的要求,使阀在工作温度下有较好的强度和安全保证。
8 、外观和重量
反映阀的外观质量且要求仪表化、轻型化、小型化。其重量应越轻越好,以方便使用,如起吊、安装、维护等。
各类调节阀的功能优劣比较
九大类产品/功能 | 调节 | 切断 | 克服压差 | 防堵 | 耐蚀 | 耐压 | 耐温 | 重量 | |
直 | 单座阀 | √ | 0 | × | 0 | √ | √ | √ | × |
双座阀 | √ | × | √ | × | 0 | √ | √ | × | |
套筒阀 | √ | 0 | √ | × | 0 | √ | √ | × | |
角形阀 | √ | 0 | × | 0 | √ | √ | √ | × | |
三通阀 | √ | 0 | × | × | × | √ | √ | × | |
隔膜阀 | × | √ | × | √ | 0 | × | × | × | |
角 | 蝶阀 | √ | √ | × | √ | 0 | √ | √ | √ |
球阀 | √ | √ | √ | √ | √ | √ | √ | × | |
偏心旋转阀 | √ | √ | √ | √ | √ | √ | √ | × | |
符号说明:“√”表示最佳;“0”表示基本可以;“×”表示差。
调节阀性能指标
依据气动调节阀的国标:GB/T4213-92,共计14个性能指标:
1基本误差;2回差;3死区;4始终点偏差;5额定行程偏差;6泄漏量;7填料函及其它连接处的密封性:8气室的密封性;9耐压强度;10额定流量系数;11固有流量特性;12抗振动性;13动作寿命;14外观。
对调节阀气源和环境温度的要求
气源应为清洁、干燥的空气,不含有明显的腐蚀性气体、溶剂或其他液体。带定位器的调节阀,其气源所含固体微粒数量应少于0.1g/m,且微粒直径应大于3μm,含油量应小于1ppm。
定位器气源不干净是造成定位器工作不正常的主要原因,占故障率的2/3以上,应特别注意这一点。
调节阀环境温度为-25~+55℃或-40~+70℃。
调节阀工作时应满足上述要求。
波纹管调节阀
有毒性、易挥发或贵重的流体不允许其泄漏时、高真空应用时或按环保清新空气要求(EPA、TA-Luft认证)时,以及核工业、石化等领域的特殊应用时,不能用径向环缝的填料密封,使用金属波纹管密封来实现“零泄漏”要求。
控制阀波纹管密封是应用波纹管组件,将其下端通常是焊接固定在阀杆上,上端固定在延长阀盖上并被压紧密封,为阀杆与阀内的过程介质之间提供一个可轴向变形的金属隔离套,形成动密封,以实现阀杆处的“零泄漏”,而且阀杆提升动作无摩擦。辅助常规的阀杆填料后备被作为双重保护,以防止万一波纹管破裂或失效时产生外漏。一般都设计有泄漏检查接口,必要时也可利用这个接口注入密封液/隔离液,也可以安装泄漏开关/传感器。
金属波纹管(Metal bellows)是一种弹性、薄壁、有多个横向波纹的管壳零件(以下简称波纹管),可制成单层或多层。
波纹管有三种制造方法:机械成形、液压成形、焊接。
用机械成形方法制造的波纹管,其波纹是在金属薄壁管上用旋转工具或模具单个波纹连续地加工成形,可根据需要制成单层或多层波纹管。管材一般选不锈钢材料的冷拔薄壁管(无缝管)和用薄板卷焊成的薄壁管(焊缝管),这也是影响波纹管使用寿命和效果的重要因素。由轧制带材、板材经熔融焊接的薄壁管(焊缝管)制成的波纹管要明显强于无缝薄管(无缝管)制成的波纹管,循环寿命有数量级之差。
应用液压成形方法制造的波纹管,是将金属薄壁管装在模具中,从其内部施加液压,同时轴向压缩金 属管而制造出波纹管。管材选用同于机械成形方法,也是选用冷拔薄壁管和用薄板卷焊成的薄壁管应用焊接方法制造的波纹管,是将多个环形弹性金属膜片的外边缘和内边缘分别交替地焊接在一起制成波纹管。
对于机械成形的U型波纹管,每个波纹比焊接波纹管的单个旋圈要占用更多空间高度,在相同位移(行程)下要比焊接波纹管的长度大得多,约3倍左右,需要的延长阀盖更长。但U型波纹不会像焊接波纹管那样容易将工艺物料残留在褶皱层内,强度也大,耐压力高,循环寿命也比较长。
在全行程,工作压力和温度下,焊接型波纹管密封的循环寿命为1万次,额定循环寿命都在10万次循环次数以上。
波纹管主要性能
1、刚度
波纹管的刚度是使波纹管产生单位位移所需要的力,按载荷与位移性质不同可有轴向刚度、弯曲刚度、扭转刚度等,在实际应用中重要的是轴向刚度。对于轴向刚度,是反映波纹管灵敏度的一个参数,刚度越大灵敏度越差。轴向刚度也与波纹数成反比。
2、位移
波纹管的位移是其压紧位移和伸张位移之和,与其波纹数成正比(单波纹位移乘以波纹总数等于总位移),有最大位移及允许位移两种。最大位移指波纹管在外压力作用下,压到波纹之间相互接触时所能产生的最大位移;
允许位移是指波纹管不产生规定塑性变形情况下所能达到的最大位移。在正常使用条件下允许产生的工作位移一般是允许位移的40%-50%。
3、耐压力
耐压力分受内压和外压两种形式,一般来讲,同一波纹管在其它条件相同时,受外压比受内压时的稳定性要好,所以受外压作用时的最大耐压力比受内压时高
4、循环寿命
波纹管随阀杆从全开到全关再到全开的移动过程称之为一次循环,循环寿命是指波纹管在规定压力、温度和轴向行程下往复运动而不破坏最大的循环次数。相同的波纹管的循环寿命是与其工作状态、位移大小、循环频次、压力和温度等有关。应用中的外力强扭转、超量位移和划伤碰伤都严重影响循环寿命和密封效果。
波纹管焊接在阀杆上并使其在自由松弛时为阀门行程的50%,使压紧位移和伸张位移大体相等,可使循环寿命达到最大点。大多数调节型控制阀的行程通常是在25%-75%之间的一个小范围内变化,是在波纹管松弛点附近产生较小位移,而不是全行程动作的整个工作位移,这也能显著延长波纹管的使用寿命,即实际循环次数要比给出的额定循环寿命要长。
5、工作温度
工作温度也是影响波纹管寿命的主要因素之一,不同的波纹管有不同的适用温度范围,但即便在要求范围内,若越趋近于范围上下限,越影响使用次数。
自力式调节阀
自力式控制阀无需外加动力源,只依靠被控流体的能量自行操作并保持被控变量恒定的阀。
1. 自力式调节阀又分为直接作用式和间接作用式两种。
1)直接作用式调节阀 直接作用式调节阀又称为弹簧负载式调节阀,其结构内有弹性元件:如弹簧、波纹管、波纹管式的温包等,利用弹性力 与反馈信号平衡的原理。(图A,B,C)


2)间接作用式调节阀 间接作用式调节阀,增加了一个指挥器(先导阀)它起到对反馈信号的放大作用然后通过执行 机构,驱动主阀阀瓣运动达到改变阀开度的目的。


轴流式自力式阀

氮封阀
自力式减压阀的一种,特点就是阀后微正压(mbar)。


减温减压器
分体式:结构简单维护方便,造价低,适用低温低压。
一体式:结构紧凑,可靠性高,控制精度高,适用高温高压。

扫描二维码分享到微信